2
$1,998,888 Sale
Listed 6 days ago
20459 78a Avenue
· 5
· 6
· 2
· 4975
Key Facts
Key facts for 20459 78a Avenue
Property Type
House
Parking
2 garage
MLS #
R3052542
Size
4975 sqft
Basement
Full,Finished,Exterior Entry
Listed on
-
Lot size
4560.00 sqft
Tax
-
Days on Market
-
Year Built
2025
Maintenance Fee
-
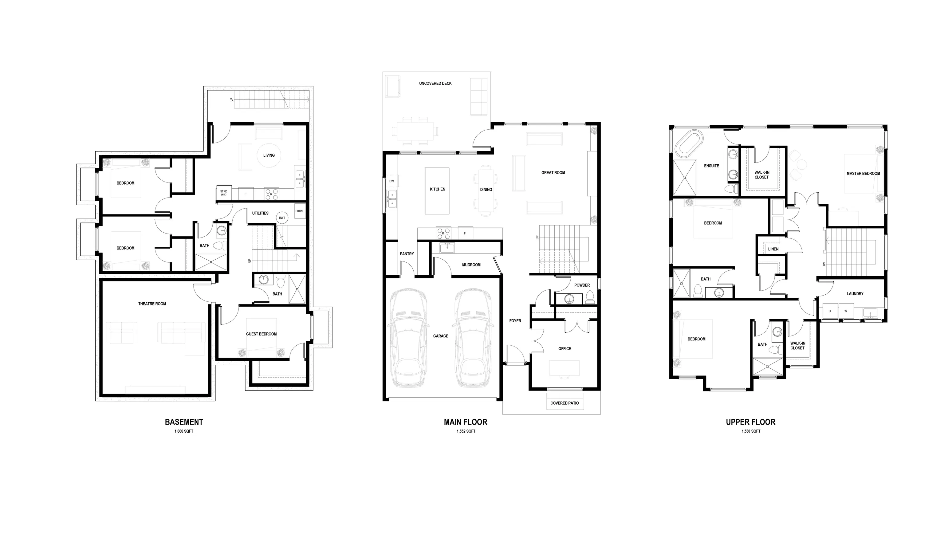
Description
Introducing Corner Lot 11 at the Seventy-Eight Collection in Willoughby, Langley. This corner lot home sits on 4,500 sq. ft. of land and offers nearly 5,000 sq. ft. of living space across three levels. Thoughtfully designed for family living, it features 6 bedrooms, 5.5 bathrooms, an open-concept ma...in floor with a gourmet kitchen, and a spacious great room. The fully finished basement with separate entry provides flexibility for a suite or additional living space. Located steps from schools, parks, and shops. Estimated completion Q3 2026.
Similar Properties (No results)
Room Types
Flex Room
-
Dimensions 11'2 x 10'11
121.9 sqft
Mud Room
-
Dimensions 8'0 x 13'3
106 sqft
Pantry
-
Dimensions 8'0 x 7'6
60 sqft
Courtesy of: Sutton Group-West Coast Realty